Krishna Apartment
Krishna Apartment
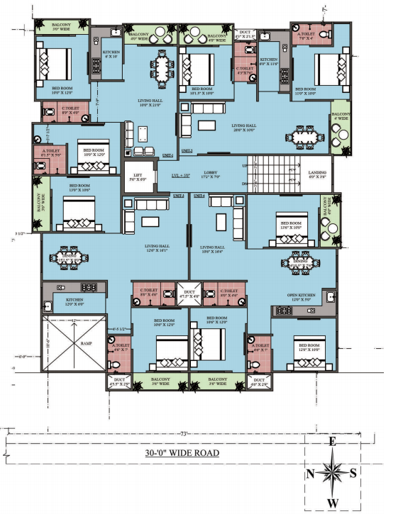
Project Overview
Introducing the prestigious B+S+4 Building nestled in the heart of Muzaffarpur, Bihar’s main residential area. This architectural marvel stands as a beacon of modern living, offering unparalleled convenience and accessibility to its residents. Strategically located amidst a plethora of amenities, the project ensures a lifestyle of utmost comfort and ease.
2 BHK Pricing Plan
3 BHK Pricing Plan
Location Advantages
Situated within a radius of 300 meters are the city’s leading educational institutions, including schools, colleges, and universities, providing unparalleled convenience for students and families alike. Moreover, major highways lie within 500 meters, facilitating seamless connectivity to various parts of the city and beyond. For those commuting by train, the railway station is a mere 750 meters away, ensuring hassle-free travel.
Proximity to Essentials:
Residents of the B+S+4 Building enjoy the convenience of having all marketplaces, major showrooms, and shopping areas within a 500-meter radius. Additionally, malls are conveniently located within 1 to 2 kilometers, offering a diverse range of shopping, dining, and entertainment options.
Project Details:
- Location: Sondho House, Damu Chak Road, Chhata Chawk, Muzaffarpur, Bihar, 842001.
- RERA Approved: BRERAP51817-1/133/R-1251/2021.
- Project Start Date: December 30, 2021.
- Project Completion Date: April 30, 2024
- Project Status: Handover will be completed before the scheduled date.
The B+S+4 Building stands as a testament to exquisite craftsmanship and meticulous planning. With its prime location, unparalleled amenities, and adherence to RERA guidelines, it promises residents a lifestyle of convenience, comfort, and luxury. Experience the epitome of contemporary living at this esteemed address in Muzaffarpur.
| Category | Details |
|---|---|
| Foundation | RAF Foundation, RCC Structure |
| Structure | Sub-structure Beam, Superstructure Frame Structure |
| Roof | R.C.C. Slab (M20) |
| Wall Finishing | Plaster with Putty or P.O.P |
| Floor Finish | Digital Floor Tiles / Custom Marble |
| Kitchen | Cooking Counter Top Granite Slab with steel sink, 3 feet height color tiles above |
| Toilet | Floor – Digital Tiles with ISI, Wall – Color of 5 Feet height Glazed Tiles |
| Door | Main Door – 32mm ply & all other – Flash door 32mm thick |
| Bathroom | ACP door |
| Window | Fully Glazed Steel Windows Glass with aluminum Frame |
| Sanitary Pipe Fitting | PVC Pipe Fitting – PVC Pipes, Dining basin Space 1 wash Basin, Toilet – Indian/Western Closet with Flush Tank |
| Electrical Fitting | Branded Electrical Supply, Electric supply will be available From NBCL |
| Generator | Silent Gen Set will be given to society |
| Water Supply | Round the clock water supply with a common water tank |
| Sewerage | Appropriate arrangement for Disposal of rainwater & suitable tank for sewerage disposal |
| Drainage | Well-planned drainage system |
| Road | Internal Road – P.C.C |
